Your Next Trade Show Venue is Sorted. We Host Festivals Too!
Boasting 42,000 sq ft, our purpose-built trade centre offers a blank canvas for your upcoming trade show, conference, meeting, or festival. No matter how big or small, our versatile space will suit your needs.
Over the past 30 years, we’ve hosted everything from international agricultural conferences to provincial job fairs, wine festivals, bioscience conventions, and family-focused festivals. Our in-house team has the expertise to ensure smooth planning and execution of your event.
Trade Centre
Specifications
- Capacity 2,000+
- Trade Show booth space 300
- 42,000 square feet Main Exhibition Hall
- 25 foot clearance
- 1500 padded chairs, 300-seat portable bleachers, 125 tables
- Portable 40 x 60 stage and four (4) 6 x 8 risers
- 10 Portable coolers
- Access to dining facilities at Red Shores Racetrack & Casino
- 3 meeting rooms on 2nd floor mezzanine level
Load In
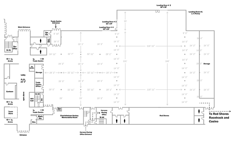
Event load in for the Trade Centre is located at the front of the building parallel with Kensington Rd. There is one (1) level loading dock and three (3) drive-in doors: 12 x 14, 12 x 14 and 18 x 29.
Lights & Sound
- LED Sectional Lightning
- PA system
- Power
- Two (2) portable panels, 100 amp, single phase voltage
- Two (2) portable panels, 100 amp, 3 phase voltage
- Three (3) 100 amp, 3 phase voltage
- One (1) 200 amp, 3 phase voltage for Audio
- One (1) 400 amp, single phase voltage for LX
- Three (3) stove plug connection panels
Media
Internet Accessible (open/private wifi networks & hardwire connections).
Eastlink TV cable, Live QMJHL Islanders hockey and Charlottetown Driving Park harness racing.
Misc
Forklift/ Scissor lift and operator are available.
Trade Centre Floor Plan
Frequently Asked
Questions
How do I book a venue at the Eastlink Centre Charlottetown?
For more information on our facilities and to book a venue, please fill out the request form on the Rent a Venue page or contact our Operations Manager, Stu Dunn at 902-629-6621 or sdunn@eastlinkcentrepei.com
How far in advance can I book a venue at the Eastlink Centre Charlottetown?
On the flip side, you can book the venue up to 96 hours pre-event, dependent on availability and whether we can accommodate your needs within this short time period.
What food options are available for events?
You’ll find a large concession stand in our main lobby serving hot food and cold beverages during games and special events. There is also a Tim Hortons located in the lobby, serving hot beverages, pastries, and more.
We offer a Deliver to Your Seat option during games! Download the Canadian Hockey League app to have food and drinks delivered directly to your seat, so you don’t have to miss a minute of the action or wait in line!
Please note guests are not permitted to bring their outside food and drink into the arena.
The sky is the limit for our special events and tradeshow clients. There are many top-notch catering providers in Charlottetown to suit your needs, whether you’re hosting a banquet for several hundred guests or a small-scale meeting for VIPs. Our in-house team will connect you with the very best options for your event and provide assistance every step of the way. You can be sure that your guests’ food and beverage experience will be exceptional!
Where can my event attendees stay while attending my event?
Located in the heart of PEI’s capital city, the Eastlink Centre Charlottetown is a short walk and even shorter drive from a wide selection of accommodations. From boutique hotels to charming bed & breakfasts, well-known hotel chains, and no-frills campus dorms, you’ll find the perfect place to meet your needs and those of your event attendees!
Is the Centre wired for internet and is wireless access available?
Public wifi is available for our guests and is not password protected.
For special events and trade shows, we provide password-protected access to our wireless Internet.
If you require wired access, we can provide this service at an additional cost to your rental. Please contact Stu Dunn for details and assistance: 902-629-6621 or sdunn@eastlinkcentrepei.com
Is parking available?
Yes, we have 800+ free parking spaces available within close proximity of the Eastlink Centre.
How do I request a tour of the Eastlink Centre Charlottetown?
Please contact Stu Dunn to book a tour: 902-629-6621 or sdunn@eastlinkcentrepei.com
Book The Trade Centre
Learn more about our facilities and book the trade show space for your upcoming event.
View Our Other Venues

Arena

Event Grounds

